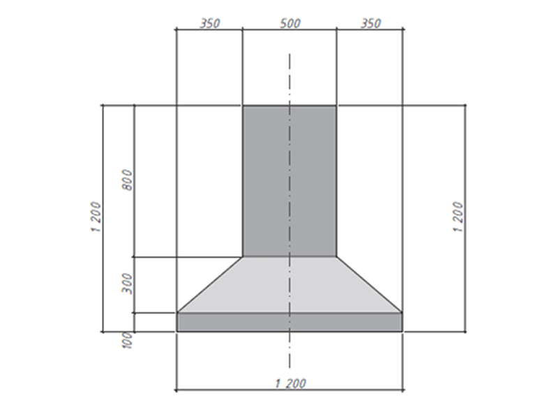
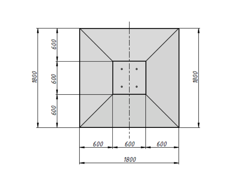
Фундамент під металеві опори П16
Збірний залізобетонний фундамент під металеві опори. Виготовляється з важкого бетону класу не нижче С20/25, має показники W8 та F100, забезпечує надійність, довговічність і швидкий монтаж.
Детальні характеристики
П16 — це збірний залізобетонний фундамент для надійного встановлення металевих опор у будівельних та інженерних конструкціях. Він створений для проєктів, де важливі міцність, стабільність геометрії та швидкий монтаж на об’єкті.
Виріб виготовляється з важкого бетону класу міцності не нижче С20/25, із показниками водонепроникності W8 та морозостійкості F100. Армування виконується з використанням арматури класів А240С та А400С, що забезпечує довговічність конструкції та стійкість до експлуатаційних навантажень.
Переваги:
- висока несуча здатність;
- готовність до швидкого монтажу;
- стійкість до вологи та морозу;
- заводська якість виготовлення;
- надійна основа для довготривалої експлуатації.
Застосування: металеві опори, інженерні конструкції, промислові та інфраструктурні об’єкти.



Фундамент під металеві опори П17
Надійний фундамент під металеві опори для будівельних та інженерних конструкцій. Відзначається міцністю, стійкістю до атмосферних впливів та заводською якістю виконання.
Детальні характеристики
П17 — це збірний залізобетонний фундамент під металеві опори, розроблений для стабільної роботи конструкцій у промисловому, комерційному та інженерному будівництві. Це рішення, яке тримає навантаження спокійно й без компромісів, коли на об’єкті важлива не лише міцність, а й передбачуваність монтажу.
Фундамент виготовляється відповідно до технічних вимог із важкого бетону класу не нижче С20/25, має характеристики W8 і F100, а також армування з прокату класів А240С та А400С. Це дає конструкції стійкість до атмосферних впливів, механічних навантажень і тривалої експлуатації.
Переваги:
- міцна та довговічна конструкція;
- точність заводського виготовлення;
- висока стійкість до зовнішніх впливів;
- оптимальне рішення для швидкого монтажу;
- відповідність технічним вимогам до збірних ЗБВ.
Застосування: металеві опори, технологічні конструкції, промислові майданчики, інженерна інфраструктура.




Фундамент під металеві опори П18
Збірний залізобетонний фундамент серії для стабільного встановлення металевих опор. Розрахований на довговічну експлуатацію, зручний у монтажі та відповідає технічним вимогам до фундаментних елементів.
Детальні характеристики
П18 — це збірний залізобетонний фундамент для встановлення металевих опор, який формує надійну базу під конструкцію та забезпечує її стабільну роботу в реальних умовах експлуатації. Це практичне рішення для тих, хто шукає баланс між міцністю, довговічністю та монтажною готовністю.
Як і вироби цієї серії, фундамент виконується з важкого бетону, армованого сталлю, з фокусом на ресурс, надійність і стійкість до зовнішніх факторів. Конструкція підходить для використання в будівельних та інженерних системах, де фундамент має бути не просто елементом, а сильною опорною точкою всієї системи.






